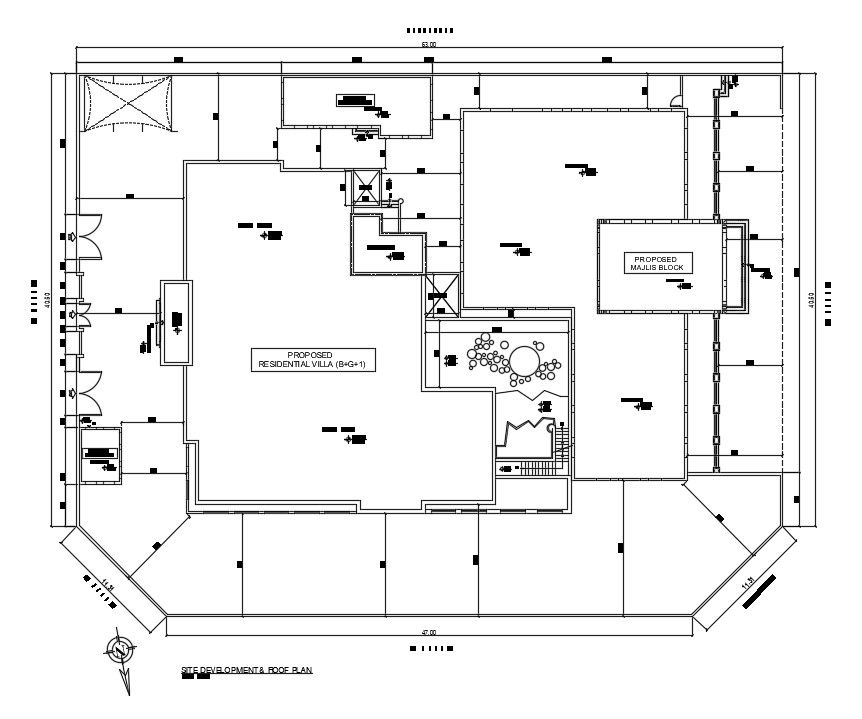
Site development of 31x37m commercial plan is given in this AutoCAD drawing file. Total site area is 63x40m.
Description
Site development of 31x37m commercial plan is given in this AutoCAD drawing file. Total site area is 63x40m. This is G+ 1 commercial building. Playing room, store room, swimming pool, lobby, gent’s toilet, and ladies toilet are available. For more details download the AutoCAD drawing file. Thank you for downloading the AutoCAD drawing file and other CAD program files from our website.
Uploaded by:

