8x30m ground floor house plan has been given in this AutoCAD drawing model. Download now.
Description
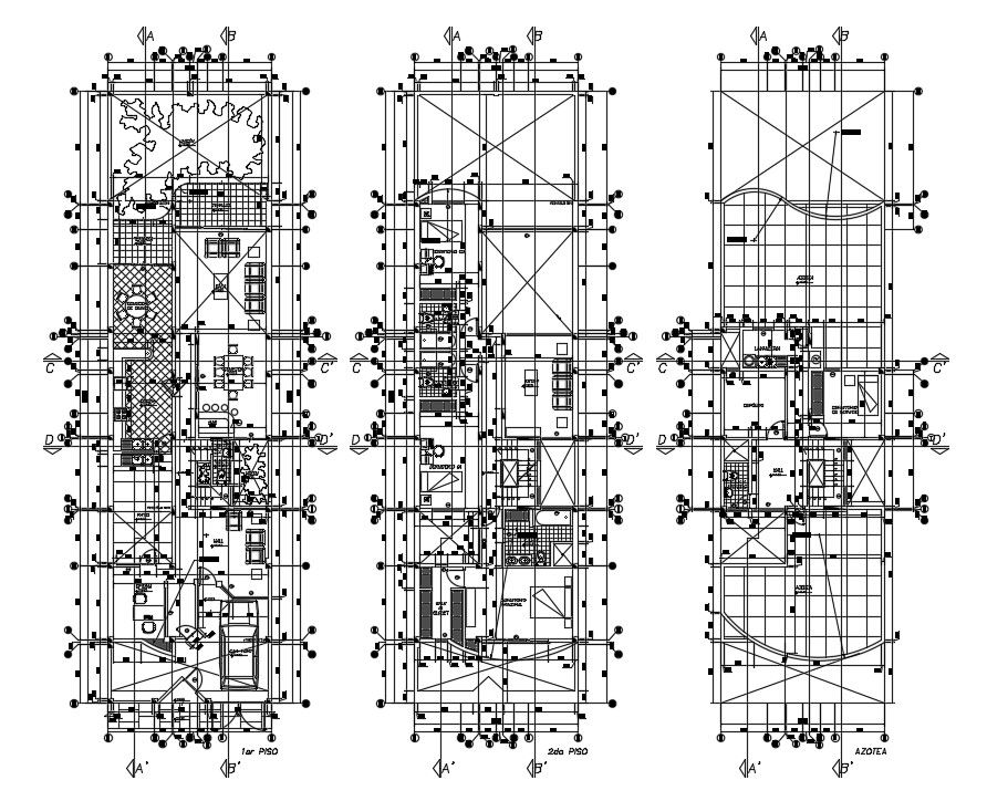
8x30m ground floor house plan has been given in this AutoCAD drawing model. This is G+ 2 house building. A car parking, living room, office, patio, garden, family lounge, kitchen, dining area, and common bathroom are available on the ground floor. The family area, master bedroom with attached bathroom, kid’s room with attached bathroom, guest room with attached bathroom, and stairs are available on the first floor. The living room, master bedroom with attached bathroom, and store rooms are available. For more details download the AutoCAD drawing file. Thank you for downloading the AutoCAD drawing file and other CAD program files from our website.
Uploaded by:

