30x17m Hotel Ground Floor Wiring Detail in CAD Drawing File
Description
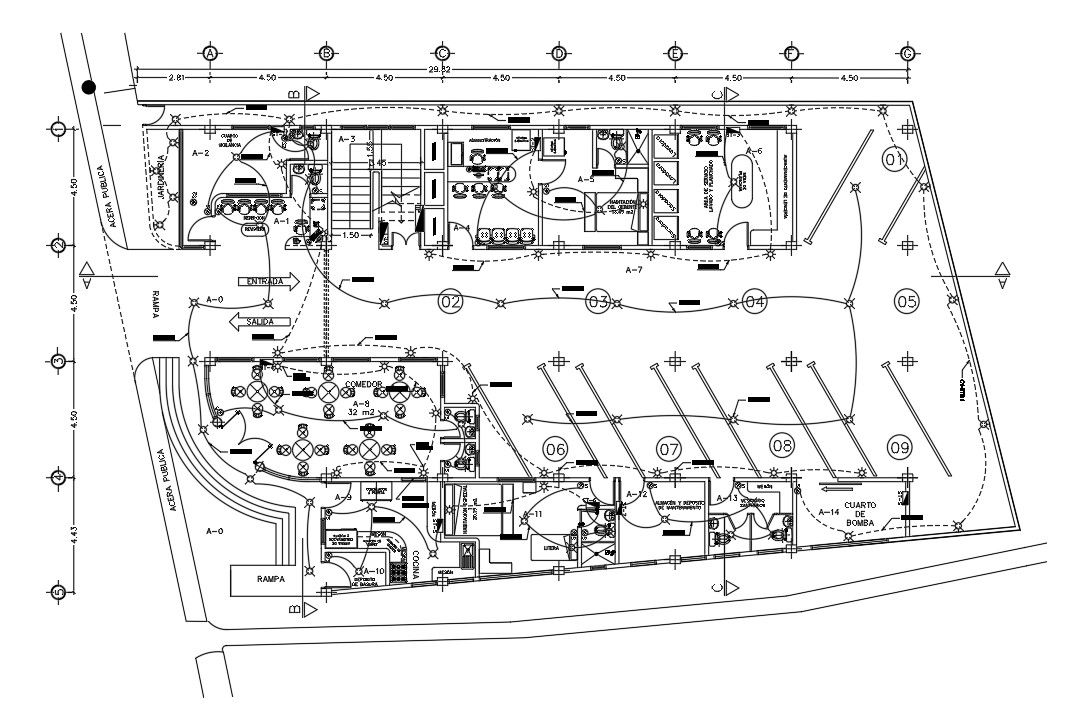
An electrical detail of the 30x17m ground floor hotel plan is given in this AutoCAD model. This is G+ 1 hotel building. The car parking, administration room, kitchen, dining area, office guest house, and common bathrooms are available. For more details download the AutoCAD drawing file. Thank you for downloading the AutoCAD drawing file and other CAD program files from our website.
File Type:
3d max
File Size:
286 KB
Category::
Electrical
Sub Category::
Architecture Electrical Plans
type:
Gold
Uploaded by:
