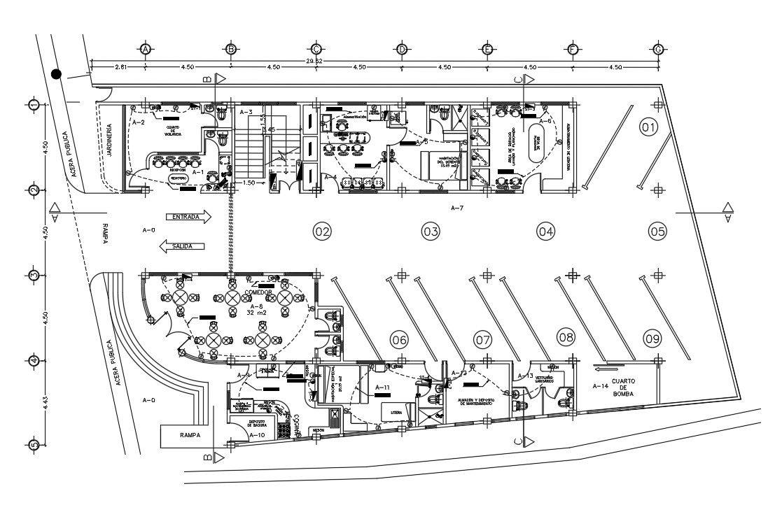
A current socket detail of the 30x17m ground floor hotel plan is given in this AutoCAD model. Download now.
Description
A current socket detail of the 30x17m ground floor hotel plan is given in this AutoCAD model. This is G+ 1 hotel building. The car parking, administration room, kitchen, dining area, office guest house, and common bathrooms are available. For more details download the AutoCAD drawing file. Thank you for downloading the AutoCAD drawing file and other CAD program files from our website.
Uploaded by:
