A layout of the 128x108m ground floor hospital plan is given in this AutoCAD drawing model. Download now.
Description
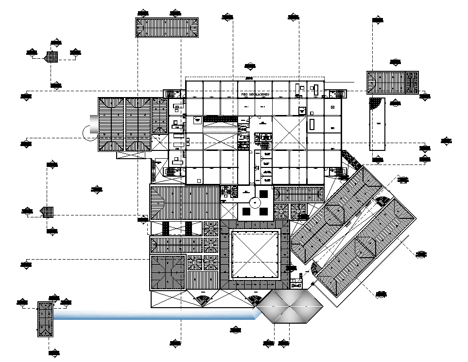
A layout of the 128x108m ground floor hospital plan is given in this AutoCAD drawing model. This is G+ 2 hospital building. Administrative office, secretary room, director room, reception, waiting room, laboratory room, control room, nurse station, x ray room, ultrasound room, biomedical room, and other details are given. For more details download the AutoCAD drawing file. Thank you for downloading the AutoCAD drawing file and other CAD program files from our website.
Uploaded by:

