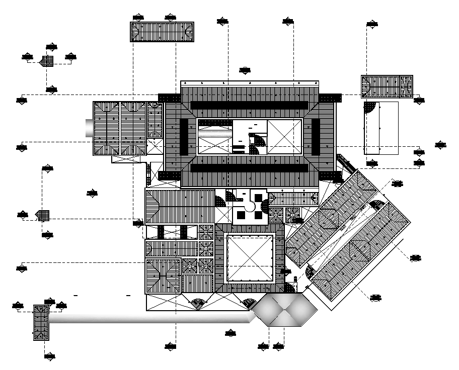
Roof construction detail of the 128x108m hospital plan is given in this AutoCAD drawing model.
Description
The roof construction detail of the 128x108m hospital plan is given in this AutoCAD drawing model. This is G+ 2 hospital building. Neurology, gynecology, obstetric, pediatric, laboratory, female toilet, male toilet, emergency ward, kitchen, cafeteria, dining area, and other details are specified on this first floor plan. For more details download the AutoCAD drawing file. Thank you for downloading the AutoCAD drawing file and other CAD program files from our website.
File Type:
DWG
File Size:
470 KB
Category::
Construction
Sub Category::
Construction Detail Drawings
type:
Gold
Uploaded by:

