wireless camera for front door
Description
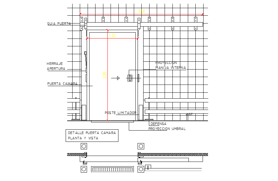
wireless camera for front door. Threshold projection, Limiter post, Door detail camera Plant and sight, Opening hardware, Door guide.
File Type:
DWG
File Size:
30 KB
Category::
Dwg Cad Blocks
Sub Category::
Windows And Doors Dwg Blocks
type:
Gold
Uploaded by:
Priyanka
Patel

