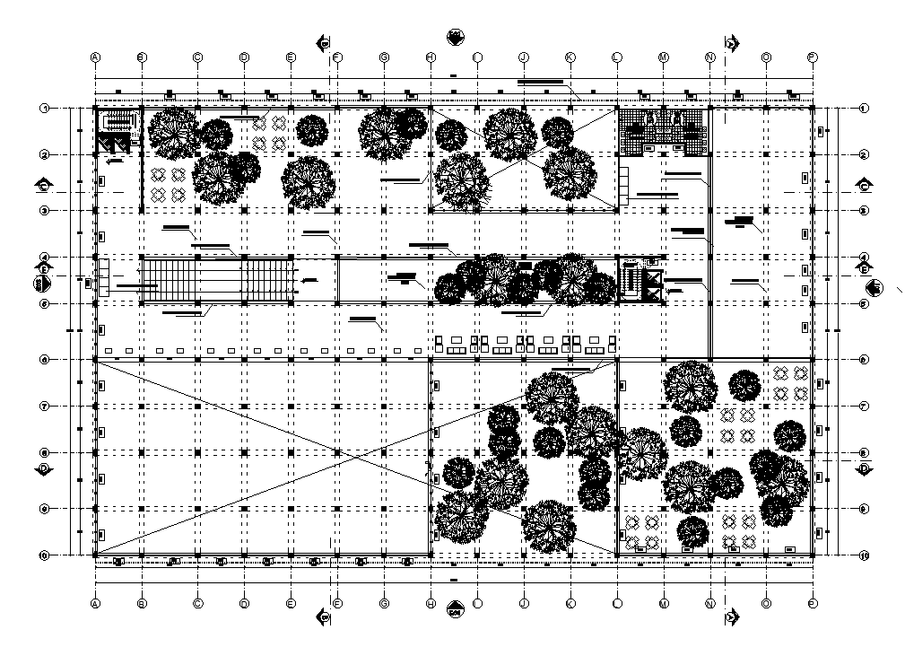
A column layout of the 77x48m ground floor library plan is given in this AutoCAD drawing model. Download now.
Description
A column layout of the 77x48m ground floor library plan is given in this AutoCAD drawing model. This is G+ 3 library building. On the ground floor library book racks, study tables, gent’s toilet, ladies toilet, access area and passages are available. For more details download the AutoCAD drawing file. Thank you for downloading the AutoCAD drawing file and other CAD program files from our website.
Uploaded by:
