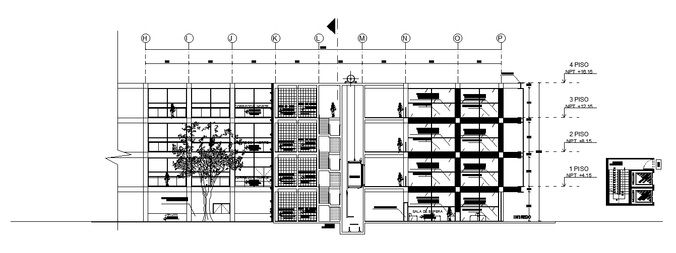
The front elevation view of the 77x48m library building is given in this AutoCAD drawing model. Download now.
Description
The front elevation view of the 77x48m library building is given in this AutoCAD drawing model. This is G+ 3 library building. On the ground floor library book racks, study tables, gent’s toilet, ladies toilet, access area and passages are available. The auditorium, conference room, study room, and other details are available on the first floor. For more details download the AutoCAD drawing file. Thank you for downloading the AutoCAD drawing file and other CAD program files from our website.
Uploaded by:

