The back side section view of the 45x66m hotel building is given in this AutoCAD drawing model. Download now.
Description
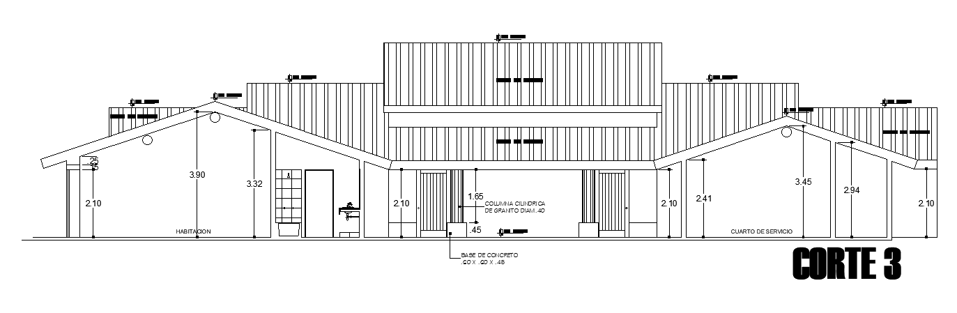
The back side section view of the 45x66m hotel building is given in this AutoCAD drawing model. This is G+ 1 hotel building. Staying room with attached toilet & bathtub, interior area, suite rooms, common bathrooms, and other details are available on this first floor. Restaurant, bar, lavaderia, dining area, reception, counter, female bathroom, male bathroom, office room, administrative room, and business center are available on this second floor. For more details download the AutoCAD drawing file. Thank you for downloading the AutoCAD drawing file and other CAD program files from our website.
Uploaded by:

