120x61m ground floor hospital plan is given in this AutoCAD drawing model.Download now.
Description
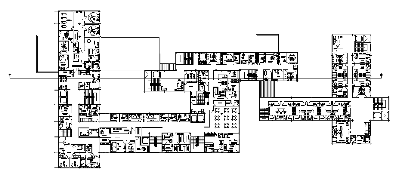
120x61m ground floor hospital plan is given in this AutoCAD drawing model. This is G+ 1 hospital building. On this plan, emergency entrance, sterilization room, cafeteria, operation theatre, consulting rooms, gas area, water closet for male & female, pharmacy, car parking, emergency ward, and other details are mentioned in this drawing model. For more details download the Autocad drawing file. Thank you for downloading the Autocad drawing file and other CAD program files from our website.
Uploaded by:

