Waterline connection of the 32x13m first floor row villa house plan is given in this AutoCAD drawing model. Download now.
Description
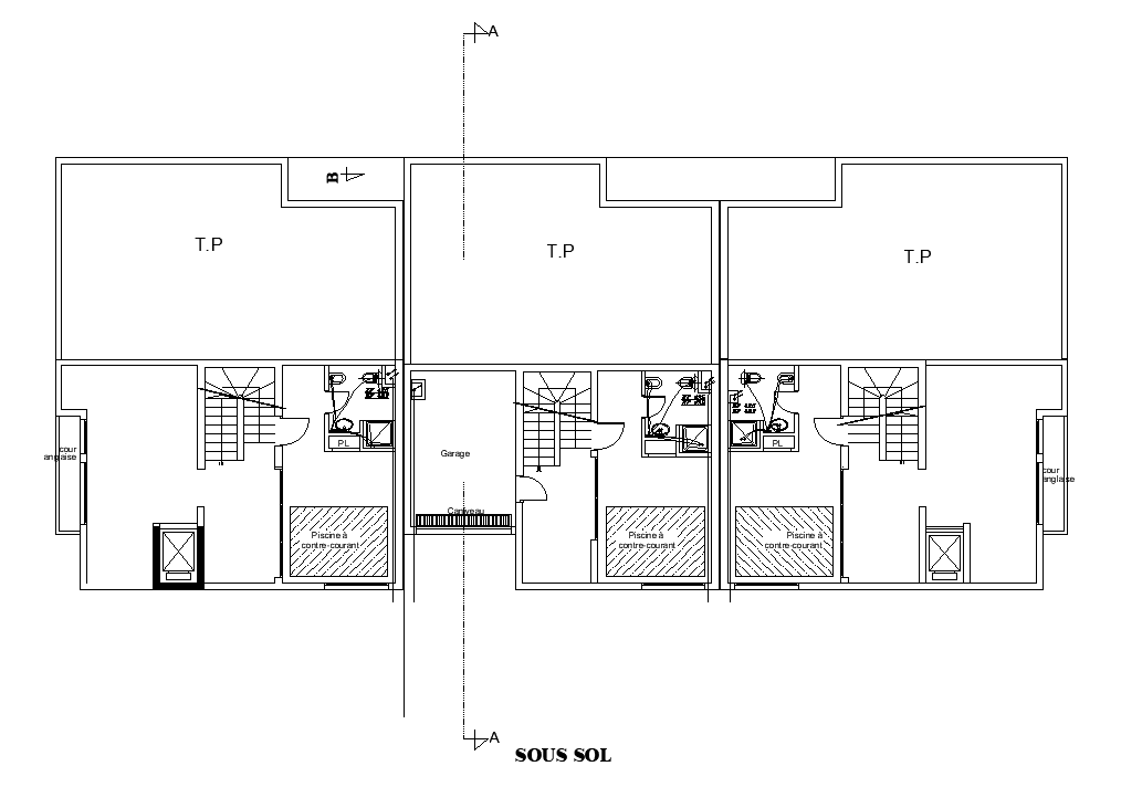
Waterline connection of the 32x13m first floor row villa house plan is given in this AutoCAD drawing model. Three houses are available on this plan. Family lounge area, master bedroom with attached bathroom, kid’s room, guest room, and common bathroom are available on the first floor. For more details download the AutoCAD drawing file. Thank you for downloading the AutoCAD drawing file and other CAD program files from our website.
File Type:
DWG
File Size:
134 KB
Category::
Dwg Cad Blocks
Sub Category::
Autocad Plumbing Fixture Blocks
type:
Gold
Uploaded by:

