The fan unit of the 35x18m hospital third floor plan is given in this AutoCAD drawing model. Download now.
Description
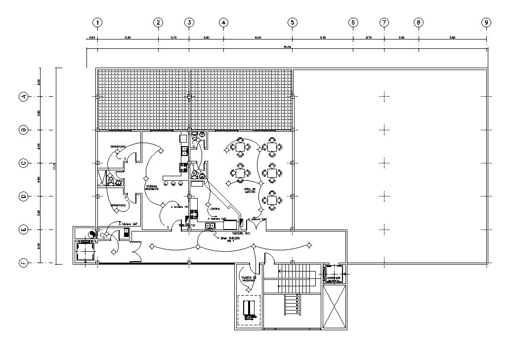
The fan unit of the 35x18m hospital third floor plan is given in this AutoCAD drawing model. This is G+ 2 hospital building. A kitchen, cafeteria, toilet, and store room are available. For more details download the AutoCAD drawing file. Thank you for downloading the AutoCAD drawing file and other CAD program files from our website.
Uploaded by:

