The light fitting detail of the 35x18m hospital first floor plan is given in this AutoCAD drawing model. Download now.
Description
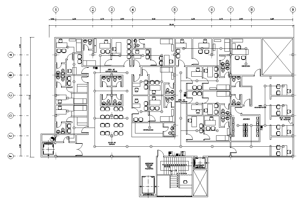
The light fitting detail of the 35x18m hospital first floor plan is given in this AutoCAD drawing model. This is G+ 2 hospital building. X ray room, laboratory, store room, cardiology room, medical room, general room, doctor’s room, gent’s toilet, and ladies toilet are available on this plan. For more details download the AutoCAD drawing file. Thank you for downloading the AutoCAD drawing file and other CAD program files from our website.
Uploaded by:

