63’x30’ first floor house plan is given in this AutoCAD drawing model.
Description
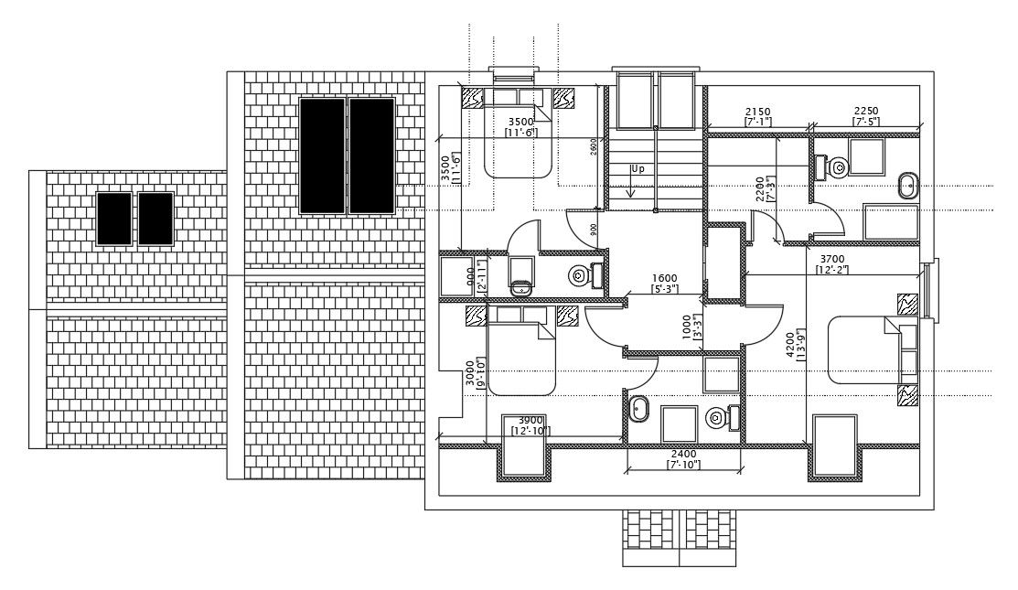
63’x30’ first floor house plan is given in this AutoCAD drawing model. This is G+ 1 house building. The master bedroom with attached bathroom, guest room with attached bathroom, and kid’s room with attached bathroom are available on the first floor. For more details download the AutoCAD drawing file. Thank you for downloading the AutoCAD drawing file and other CAD program files from our website.
Uploaded by:

