An electrical layout of the 36’x44’ first floor hospital plan is given in this AutoCAD drawing model. Download now.

An electrical layout of the 36’x44’ first floor hospital plan is given in this AutoCAD drawing model.  Download now.
Profile

Uploaded by:

Meera

Description
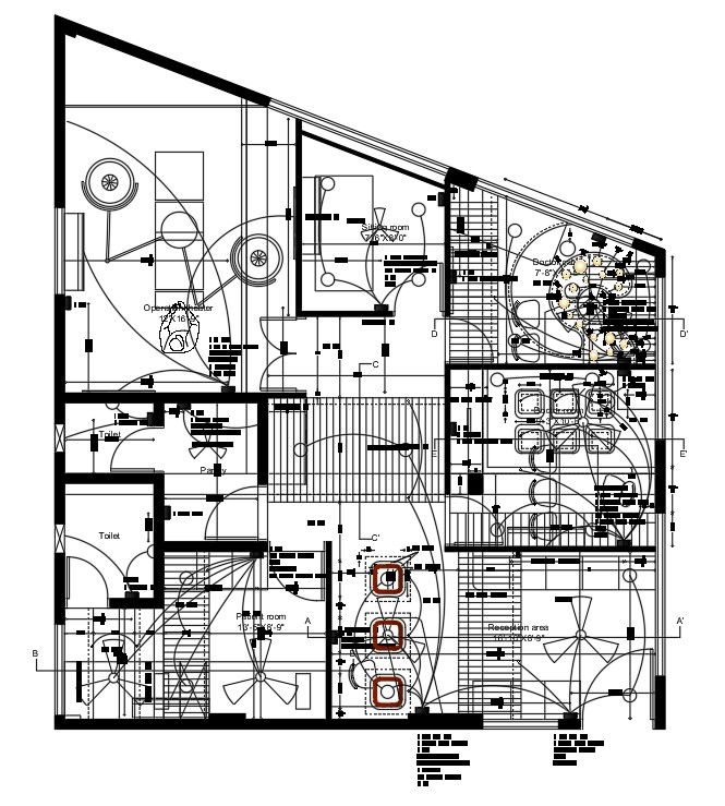
An electrical layout of the 36’x44’ first floor hospital plan is given in this AutoCAD drawing model. This is G+ 1 hospital building. The operation theatre, sitting room, gent’s toilet, pantry, doctor rooms, ladies toilet, bay trolley, reception area, and patient room are available. For more details download the AutoCAD drawing file. Thank you for downloading the AutoCAD drawing file and other CAD program files from our website.
Profile

Uploaded by:

Meera

find Latest

Related Files

WhatsApp Chat