The front section view of the terrace pergola is given in this AutoCAD file. 91x91m first floor mall is given in this AutoCAD drawing model.
Description
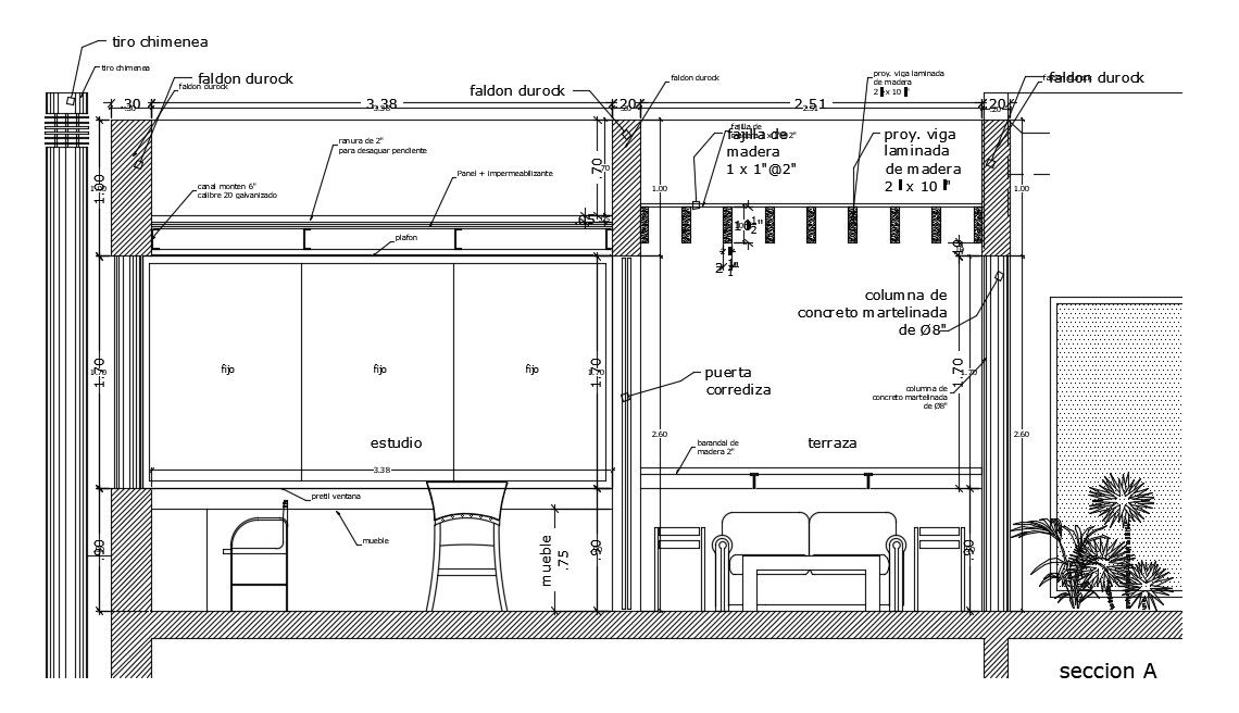
The front section view of the terrace pergola is given in this AutoCAD file. The total height of the pergola is 3.6m. The roof plan is given on this drawing. 4x8 "laminated wood beam, durock skirt, 1 x 1" @ 1 "wood fascia, 2" wood railing, and other details are given. For more details download the AutoCAD drawing file. Thank you for downloading the AutoCAD drawing file and other CAD program files from our website.
Uploaded by:

