29’X27’ first floor house plan is given in this AutoCAD drawing model. Download now.
Description
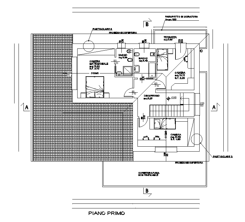
29’X27’ first floor house plan is given in this AutoCAD drawing model. This is G+ 1 house building. The master bedroom with an attached bathroom, guest room, kid’s room, and common bathroom are available on this first floor plan. For more details download the AutoCAD drawing file. Thank you for downloading the AutoCAD drawing file and other CAD program files from our website.
Uploaded by:
