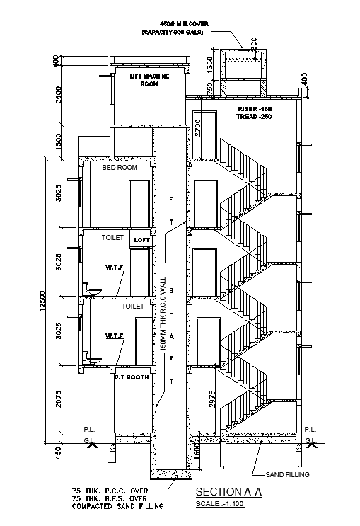
Residential building section detail cad drawing is given in this cad file. Download this cad file now.
Description
Residential building section detail cad drawing is given in this cad file. There are sectional details are available. For more 3d or 2d cad drawings visit our website cadbull.com. Download this cad file now.

Uploaded by:
AS
SETHUPATHI

