40'x80' house design cad drawing is given in this cad file. Download this cad file now.
Description
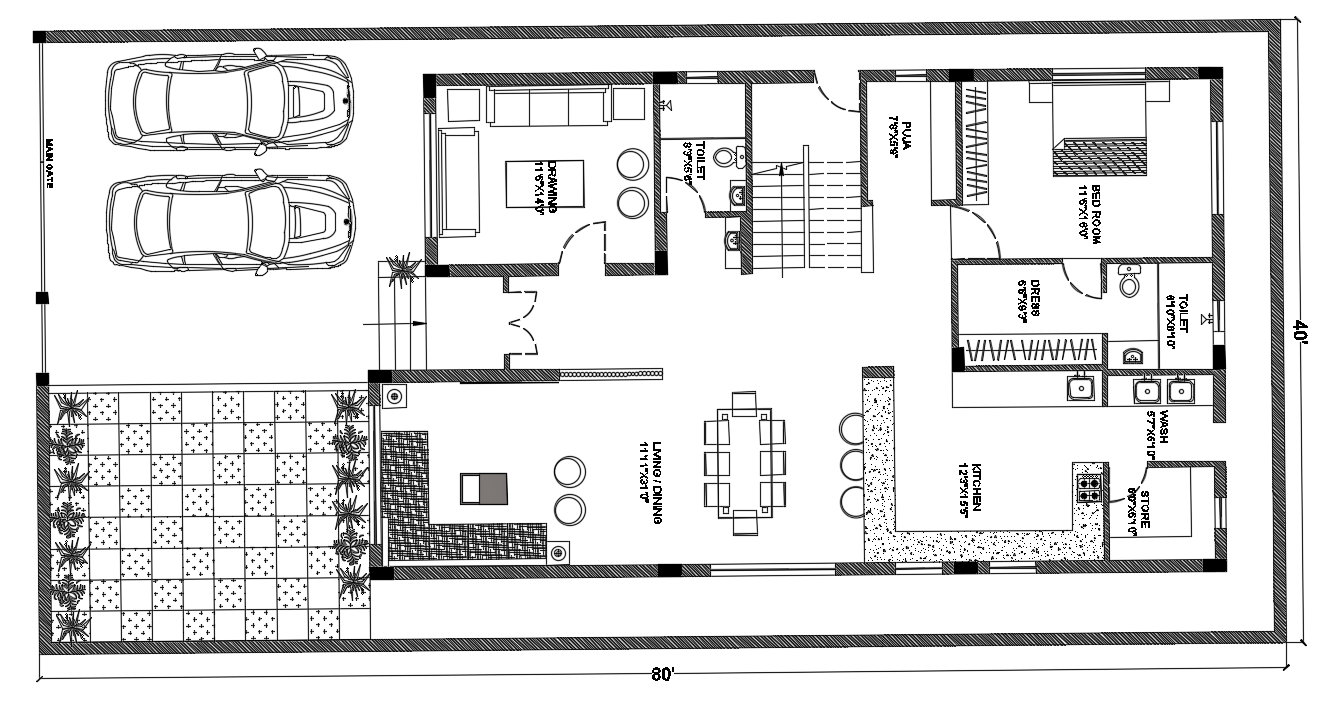
40'x80' house design cad drawing is given in this cad file. There is a 2d floor plan is available. in this floor plan, there is the drawing-room, living room with a dining area, kitchen, master bedroom with attached toilet and dressing and puja is also available. Download this cad file now.

Uploaded by:
AS
SETHUPATHI

