Small house simple floor plan CAD drawing files are given. Download now.
Description
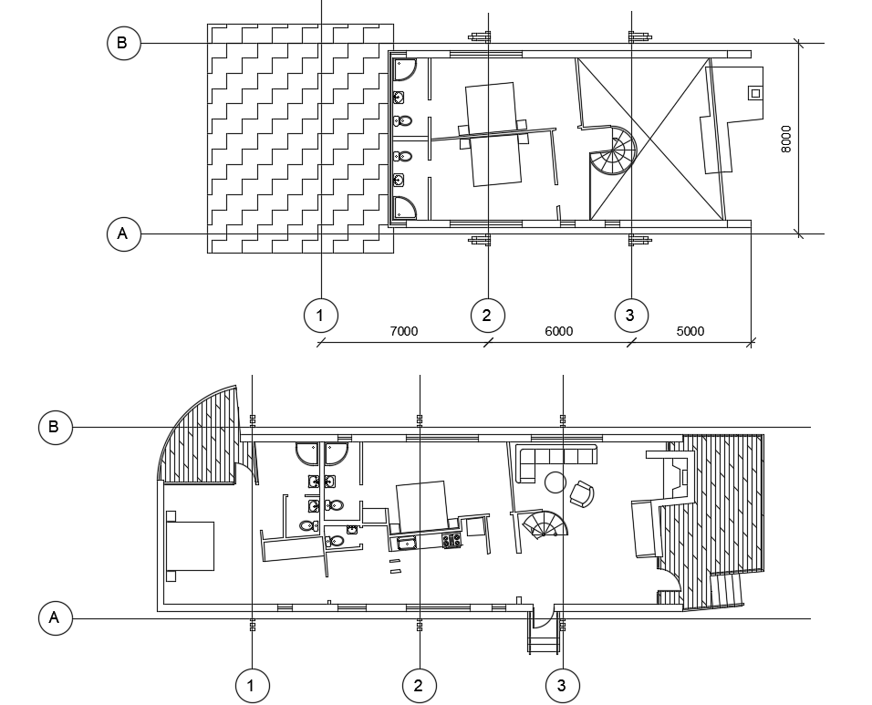
Small house simple floor plan CAD drawing files are given in this AutoCAD file. Two types of tiny house floor plan cad drawings are given here. This type of tiny house floor plan drawing is useful for civil and structural engineers. For more details download this DWG drawing file. Thank you so much for downloading the CAD drawing file and other CAD program files from our website.

Uploaded by:
AS
SETHUPATHI

