G+2 Small home floor plan CAD drawing files are provided. Download now.
Description
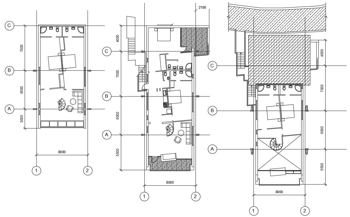
G+2 Small home floor plan CAD drawing files are provided in this AutoCAD file. G+2 tiny house floor plan cad drawings are given here. This type of small house floor plan drawing is useful for civil and structural engineers. For more details download this DWG drawing file. Thank you so much for downloading the CAD drawing file and other CAD program files from our website.

Uploaded by:
AS
SETHUPATHI

