The shopping center cad drawing is given in this cad file. Download this cad file now.
Description
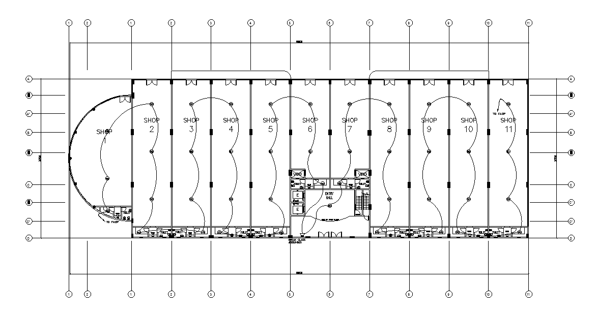
The shopping center cad drawing is given in this cad file. There is a 2d floor plan is available. In this plan, there is a centerline plan and an electrical layout is also available. For more 3d or 2d cad drawings visit our website cadbull.com. Download this cad file now.

Uploaded by:
AS
SETHUPATHI

