25x60 first floor house plan is given in this AutoCAD drawing model. Download now.
Description
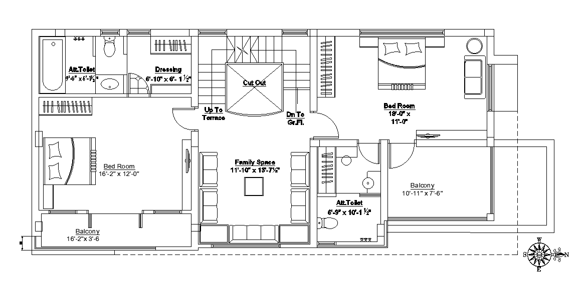
25x60 first floor house plan is given in this AutoCAD drawing model. This is G+ 2 house building. Family space, master bedroom with an attached toilet & dressing room, kid’s room with an attached toilet, and balconies are available on this first floor house plan. For more details download the AutoCAD drawing file. Thank you for downloading the AutoCAD drawing file and other CAD program files from our website.
Uploaded by:

