25x60 second floor house plan is given in this AutoCAD drawing model. Download now.
Description
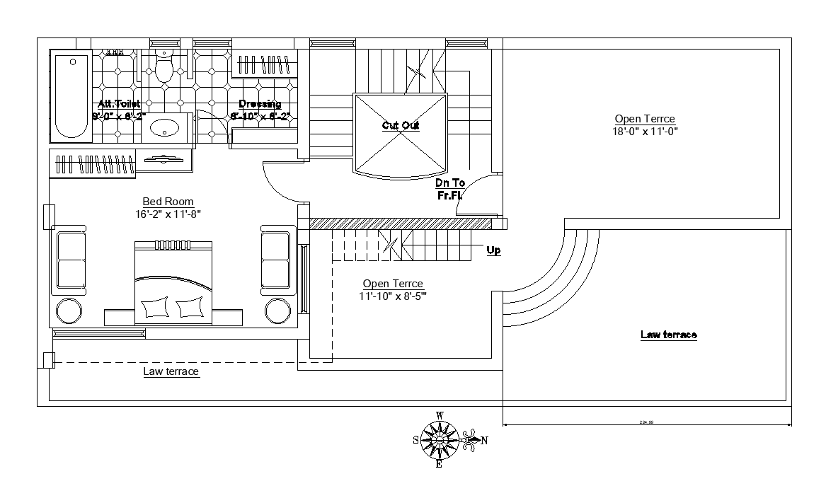
25x60 second floor house plan is given in this AutoCAD drawing model. This is G+ 2 house building. The master bedroom with an attached toilet & dressing room, and open terrace is available on the second floor house plan. For more details download the AutoCAD drawing file. Thank you for downloading the AutoCAD drawing file and other CAD program files from our website.
Uploaded by:

