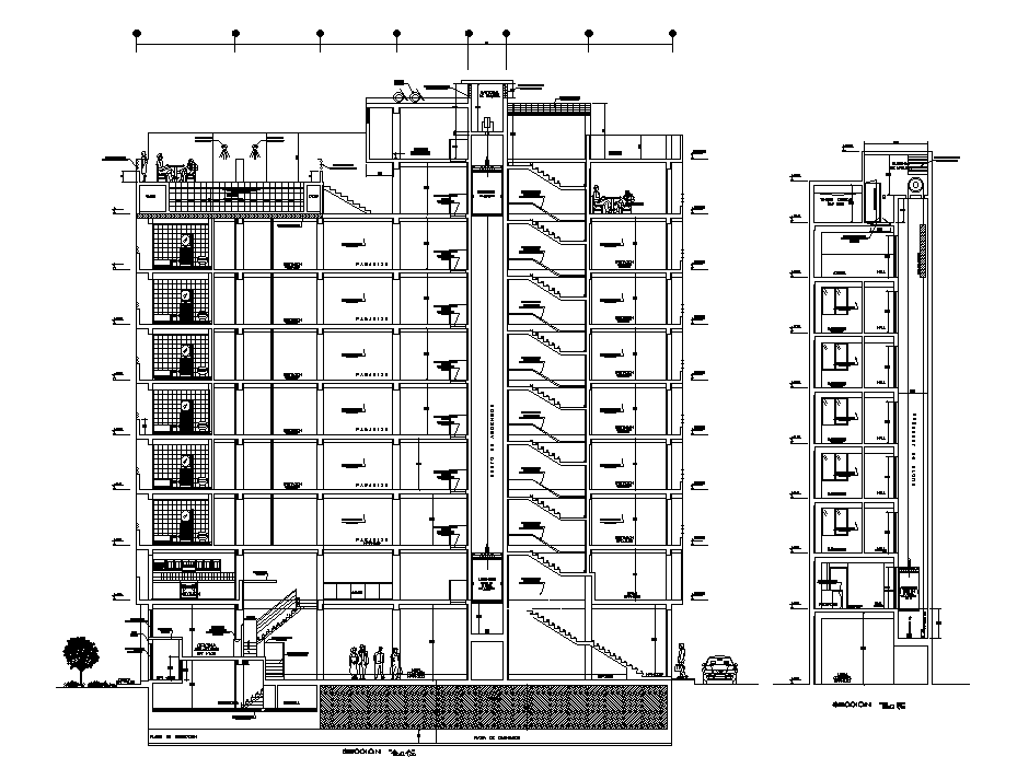
The left side elevation of the 28x8m commercial building is given in this AutoCAD drawing model.
Description
The left side elevation of the 28x8m commercial building is given in this AutoCAD drawing model. This is G+ 8 level commercial building. The left side and lift area view has been given in this model. For more details download the AutoCAD drawing file. Thank you for downloading the AutoCAD drawing file and other CAD program files from our website.
Uploaded by:

