40x28m house plan is given in this AutoCAD drawing model. Download now.
Description
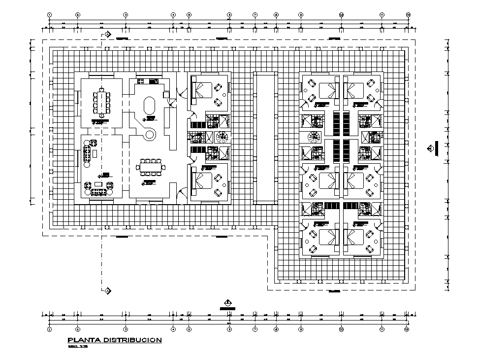
40x28m house plan is given in this AutoCAD drawing model. This is single story house building with 6.1m in height. A kitchen, dining area, breakfast dining, master bedroom with an attached toilet, kid’s room with an attached toilet, and common bathroom are available on this house plan. And also, a guest room with an attached toilet, two kid’s rooms with an attached toilet, and maid rooms are available. For more details download the AutoCAD drawing file. Thank you for downloading the AutoCAD drawing file and other CAD program files from our website.
Uploaded by:

