41X45 m first floor restaurant plan is given in this AutoCAD drawing model. Download now.
Description
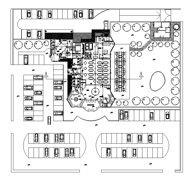
41X45m first floor restaurant plan is given in this AutoCAD drawing model. This is G+ 1 restaurant building. Hall, kitchen, office room, dining area, store room, female toilet, male toilet, and other details are mentioned in this model. For more details download the AutoCAD drawing file. Thank you for downloading the AutoCAD drawing file and other CAD program files from our website.
Uploaded by:

