Office floor plan cad drawing is given in this cad file. Download this 2d cad file now.
Description
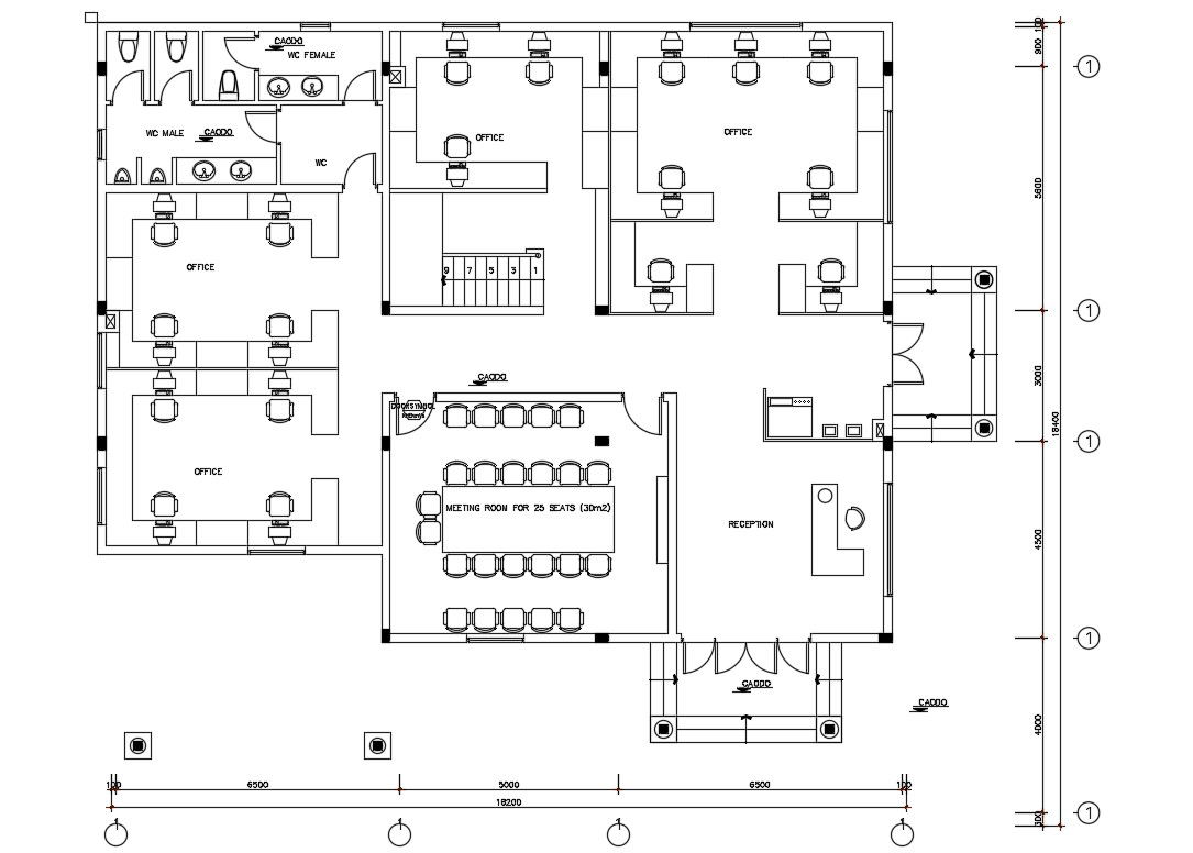
Office floor plan cad drawing is given in this cad file. There is a 2d floor plan is available. There are centerline details are also available. In this office there are different cabins, meeting area, reception area, and toilets are available. Download this 2d cad file now.

Uploaded by:
AS
SETHUPATHI

