Bungalow design cad drawing is given in this cad file. Download this 2d Auto cad file now.
Description
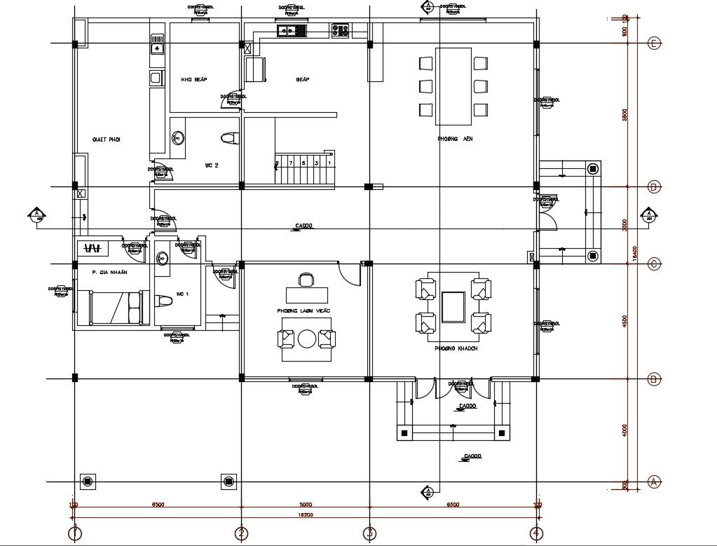
Bungalow design cad drawing is given in this cad file. There is a 2d floor plan is available. In this ground floor plan, there is a living room, kitchen, dining, wash area, common toilet, study room, and bedroom is available. Download this 2d Auto cad file now.

Uploaded by:
AS
SETHUPATHI

