Toilet detail cad drawing is given in this cad file. Download this 2d cad file now.
Description
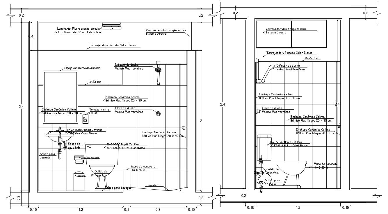
Toilet detail cad drawing is given in this cad file. There are 2d views are available. In this cad drawing, there are wall elevations with plumbing detail, measurements and material are available. Download this 2d cad file now.

Uploaded by:
AS
SETHUPATHI

