Office Building Plan Drawing Download DWG File
Description
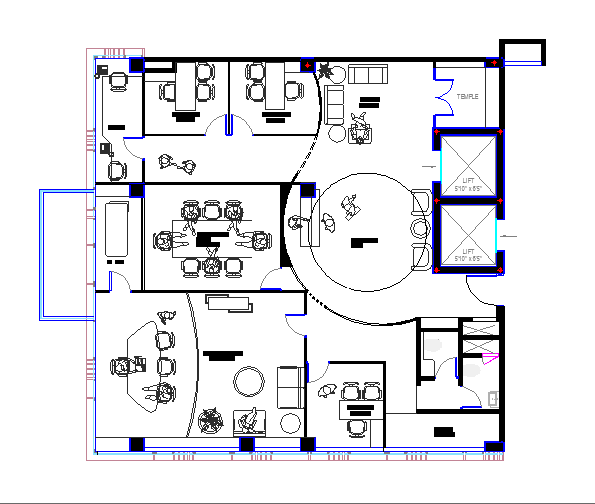
The architecture CAD drawing of the office building floor plan consists reception area, administration office,temple,lift, pantry, toilet and entrance lobby with all dimensions and furniture detail. Furniture layout is shown in this file. Thank you for downloading the AutoCAD drawing file and other CAD program files from our website.
Uploaded by:
K.H.J
Jani

