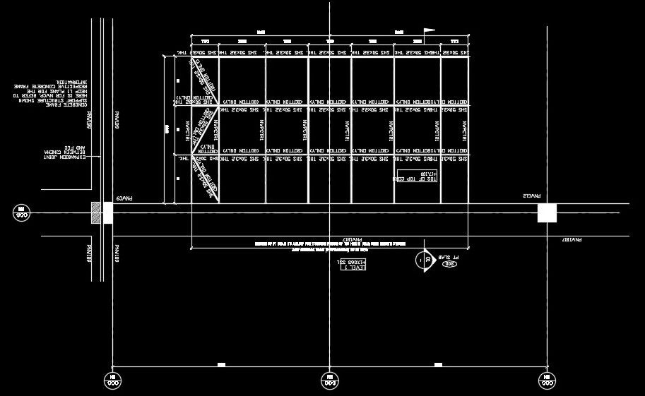
Typical footing section detail drawing
Description
Typical footing section detail drawing is given in this 2D AutoCAD file. Footing size, slab on grade, waterproofing membrane, footing frame, 5omm blinding concrete, and compacted back fill is mentioned. For more details, download the AutoCAD files for free from our website.
Uploaded by:

