380x350mm column base plate detail drawing
Description
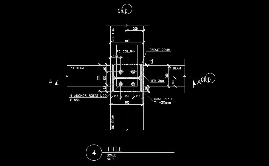
380x350mm column base plate detail drawing is given in this AutoCAD drawing model. 4 numbers of anchor bolt is provided and the bolt size is M20. Thickness of the base plate is 20mm. For more details download the AutoCAD files for free from our website.
Uploaded by:

