41x19m single floor house plan
Description
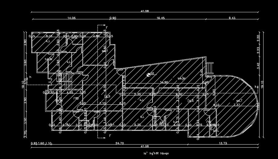
41x19m single floor house plan is given in this AutoCAD drawing model. The height of the building is 4.25m. 3 houses are available on this plan. Each house consists of the kitchen, living room, dining area, master bedroom with the attached toilet, kid’s room, guest room, and common bathroom.
Uploaded by:

