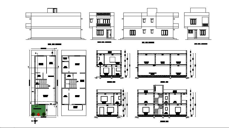
22’x60’ Modern House Plan And Elevation AutoCAD Drawing

22’x60’ Modern House Plan And Elevation AutoCAD Drawing
Profile

Uploaded by:

K.H.J

Jani

Description
22’x60’ Modern House Plan detail drawing in DWG AutoCAD file. Modern house plan shows ground floor includes drawing room, dining area, kitchen, toilet, bedroom. On second floor 2 bedrooms with attach toilet, balcony, store room and passage. Inside staircase is also available in this file. In modern house DWG File sections and elevations are available. , Thank you for downloading the AutoCAD drawing file and other CAD program files from our website. Visit CADBULL.COM Site.
Profile

Uploaded by:

K.H.J

Jani

find Latest

Related Files