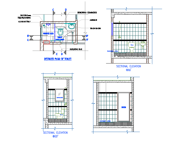
3 x 2 Meter Toilet Plan Layout
Description
3x 2 Meter Toilet Plan Layout shown in AutoCAD File. The toilet plan and elevation CAD drawing include consulting the architect for selection of tiles toilet, fixtures, and other accessories, center point plumbing to be done. continental series as approved by architect all dimensions are in meters. Thank you for downloading the AutoCAD drawing file and other CAD program files from our website.
Uploaded by:
K.H.J
Jani
