20x15 Meter House Plan AutoCAD Layout DWG File.
Description
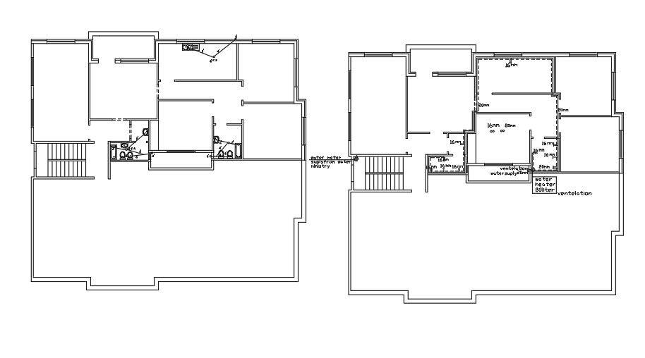
20x15 Meter House Plan AutoCAD Layout DWG File. House Plan Ground floor and the first floor include kitchen and toilet details with sizes. Connection details show in this AutoCAD File. Thank you for downloading the AutoCAD drawing file and other CAD program files from our website. Visit CADBULL.COM Site.
Uploaded by:
K.H.J
Jani
