Electric Plan Of Floor Plan AutoCAD File
Description
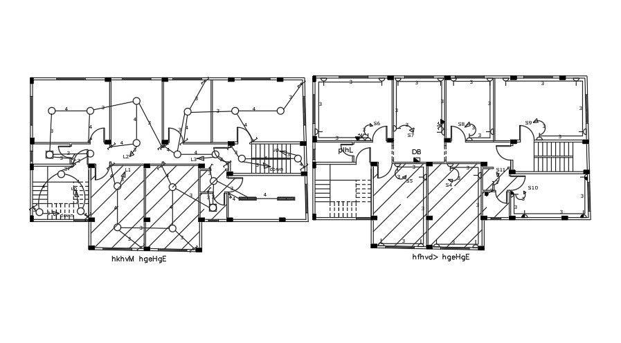
The electrical house layout plan CAD drawing shows the floor plan which ceiling light, and wiring connection detail. download house plan electrical plan drawing dwg file. Thank you for downloading the AutoCAD drawing file and other CAD program files from our website. Visit CADBULL.COM Site.
Uploaded by:
K.H.J
Jani

