20x12 Meter terrace Floor AutoCAD File
Description
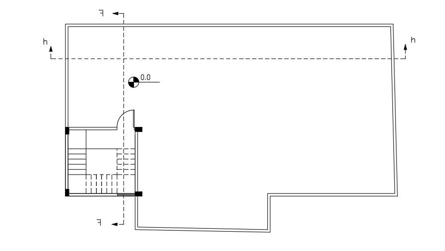
The terrace floor House plan layout shows a 20x12 meter size. House plan Layout includes column placement and an inside staircase is available. dimensions are in a meter. Thank you for downloading the AutoCAD drawing file and other CAD program files from our website. Visit CADBULL.COM Site.
Uploaded by:
K.H.J
Jani

