Section Layout Of House AutoCAD Download File
Description
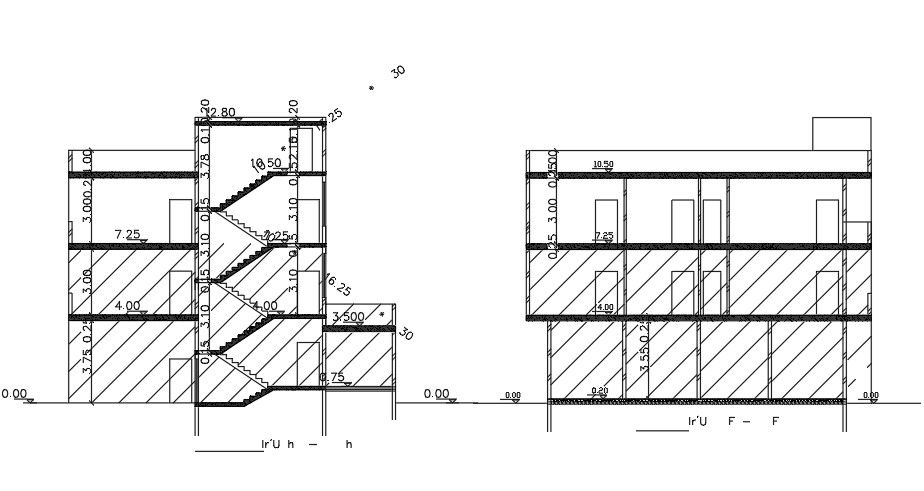
Sections Of the house Building AutoCAD files are shown in this drawing file. This is a house section drawing. The sections of the House include window and door sizes and staircase sections with all dimensions. levels are shown in this file. Thank you for downloading the AutoCAD drawing file and other CAD program files from our website. Visit CADBULL.COM Site.
Uploaded by:
K.H.J
Jani
