13x24 Meter 8 BHK Bungalow Plan AutoCAD File
Description
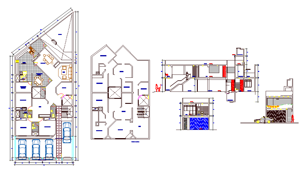
The architecture residence 8 BHK house design of the ground floor and first-floor plan includes 8 bedrooms with an attached toilet, modular kitchen, offices, study room, home theater, dining area, living area, drawing room, sitting lounger, inside staircase, and front lawn with car porch. the added detail such as furniture layout plan and all dimension detail in dwg file. Elevations and sections are also available. Thank you for downloading the AutoCAD drawing file and other CAD program files from our website. Visit CADBULL.COM Site.
Uploaded by:
K.H.J
Jani

