15x16m school plan of the staircase layout drawing
Description
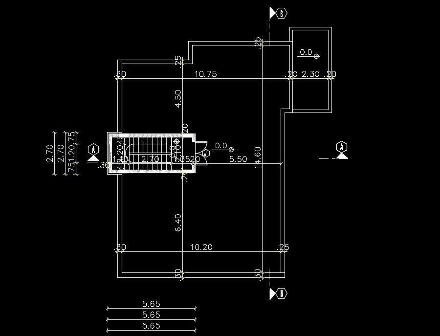
15x16m school plan of the staircase layout drawing is given in this AutoCAD file. The length and breadth of the staircase are 5.65m and 2.7 respectively. For more details download the AutoCAD file.
Uploaded by:

