57x28m length of the slab cum loading detail drawing download now
Description
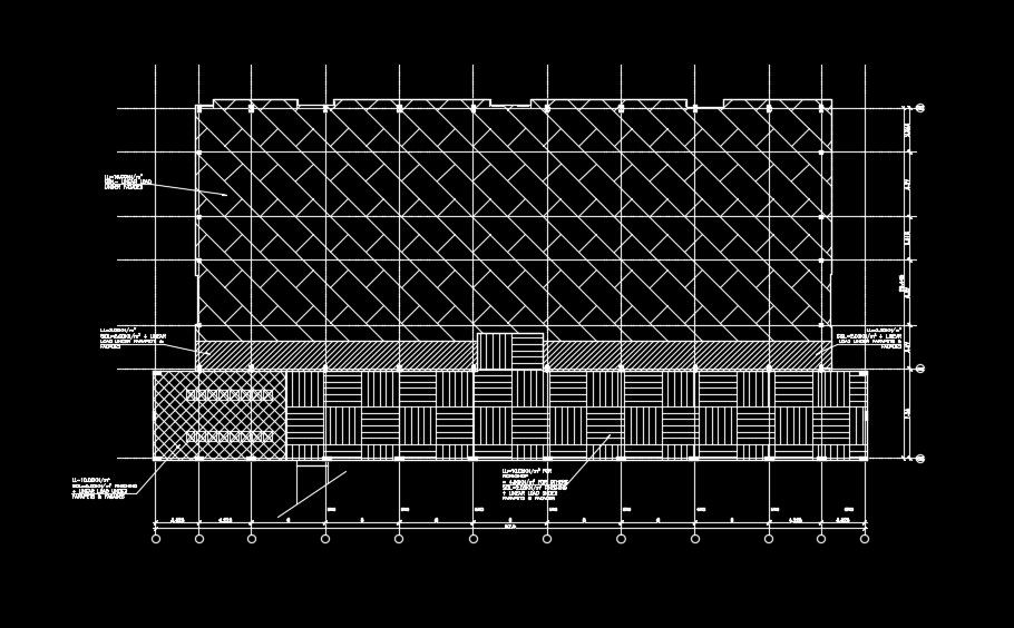
57x28m length of the slab cum loading detail is given in this AutoCAD drawing model. This is provided for the 50x32m industrial plan. Finishing loading and linear load are provided. For more details download the AutoCAD files.
Uploaded by:
