26x11 Meter 4 BHK House Plan CAD Drawing
Description
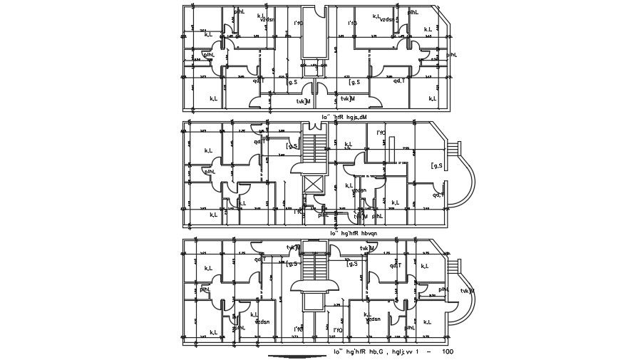
4 BHK House plan layout shows a 26x11 meter size.4 BHK House plan Layout includes column placement, 4 bedrooms, living room, kitchen, dining area, and staircase is available. centerline plan is also available in this file. House Plan dimensions are in a meter. Thank you for downloading the AutoCAD drawing file and other CAD program files from our website. Visit CADBULL.COM Site.
Uploaded by:
K.H.J
Jani

