Water Tank Section DWG File
Description
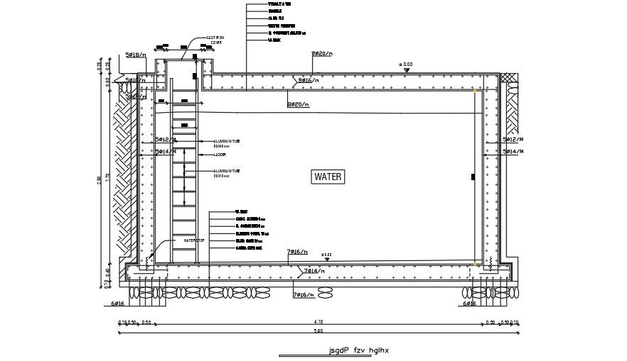
The water tank section detailed plan drawing is given in this cad file. There is a 2d detailed floor plan is available. In this cad drawing, there is centerline details are available. For more 3d or 2d cad drawings visit our website cadbull.com. Download this 2d Auto cad file.
Uploaded by:
K.H.J
Jani

