9x10 Meter Small House DWG File
Description
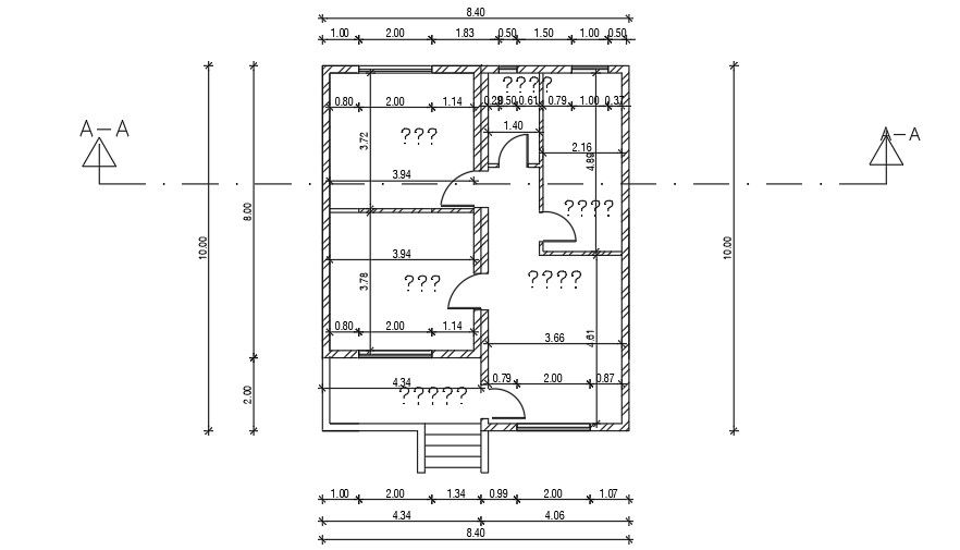
The small House Plan layout shows in this file. Small House Plan Layout includes column placement, 1 bedroom, living room, kitchen, dining area, and staircase is available. centerline plan is also available in this file. small House Plan dimensions are in a meter. Thank you for downloading the AutoCAD drawing file and other CAD program files from our website. Visit CADBULL.COM Site.
Uploaded by:
K.H.J
Jani

