The column location detail of the 15x13m house plan download now
Description
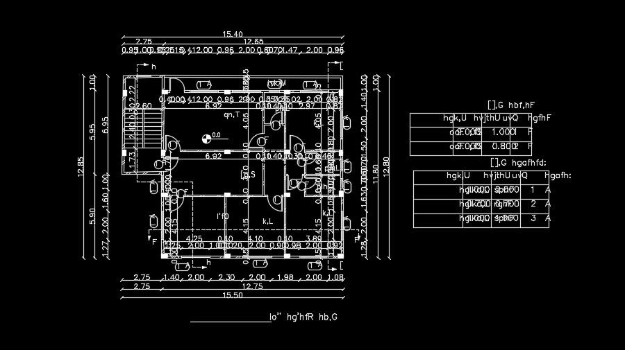
The column location detail of the 15x13m house plan is given in this AutoCAD drawing model. The distance between each column has been given. This is G+ 2 home building. The living room, kitchen, master bedroom with attached toilet and balcony, guest room, drawing room, kid’s room with the attached toilet, and common bathroom are available. For more details download the AutoCAD file for free from our website.
Uploaded by:

