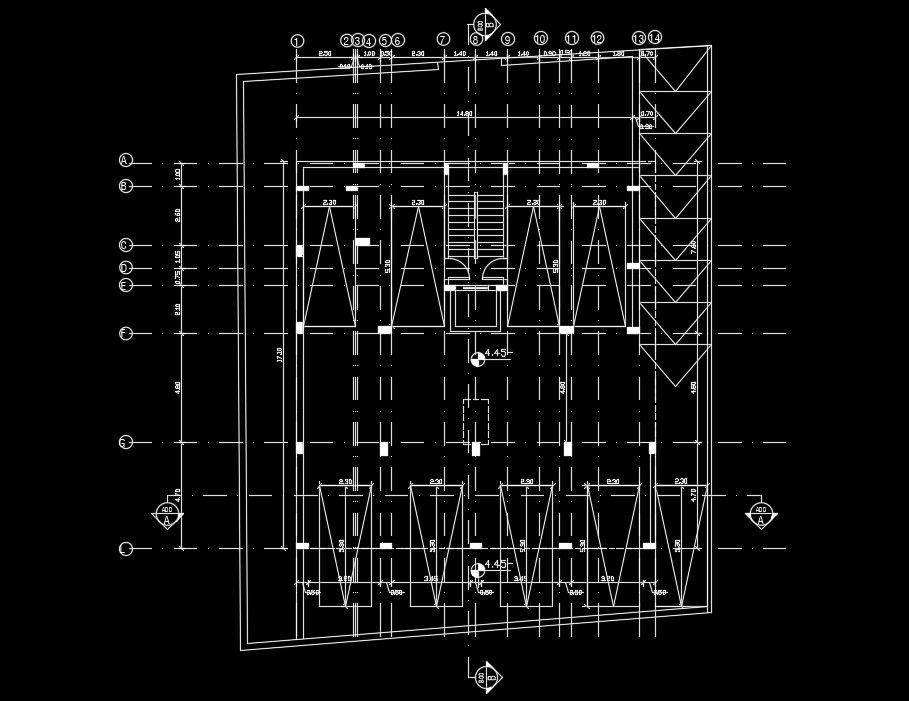
A site layout of the 15x18m apartment plan
Description
A site layout of the 15x18m apartment plan is given in this AutoCAD file. Column location details are mentioned here. For more details download the AutoCAD file from our website.
Uploaded by:

