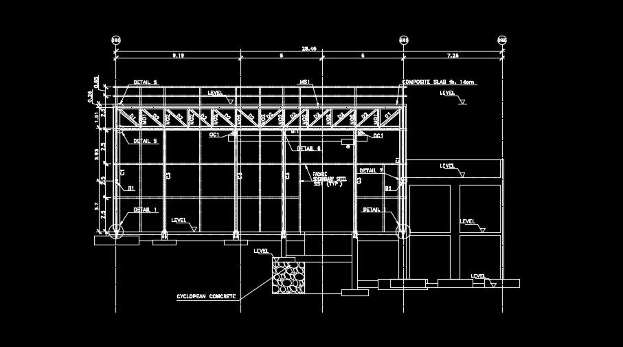
The back side section view of the 28x12 industrial plan
Description
The back side section view of the 28x12 industrial plan of the column view is given in this AutoCAD drawing model. The thickness of the composite slab is 140mm. The channel section details are given which is used for the column. For more details download the AutoCAD drawing model.
Uploaded by:
